
Interventi di adeguamento antisismico impiantistico e funzionale del liceo classico Fazello di Sciacca
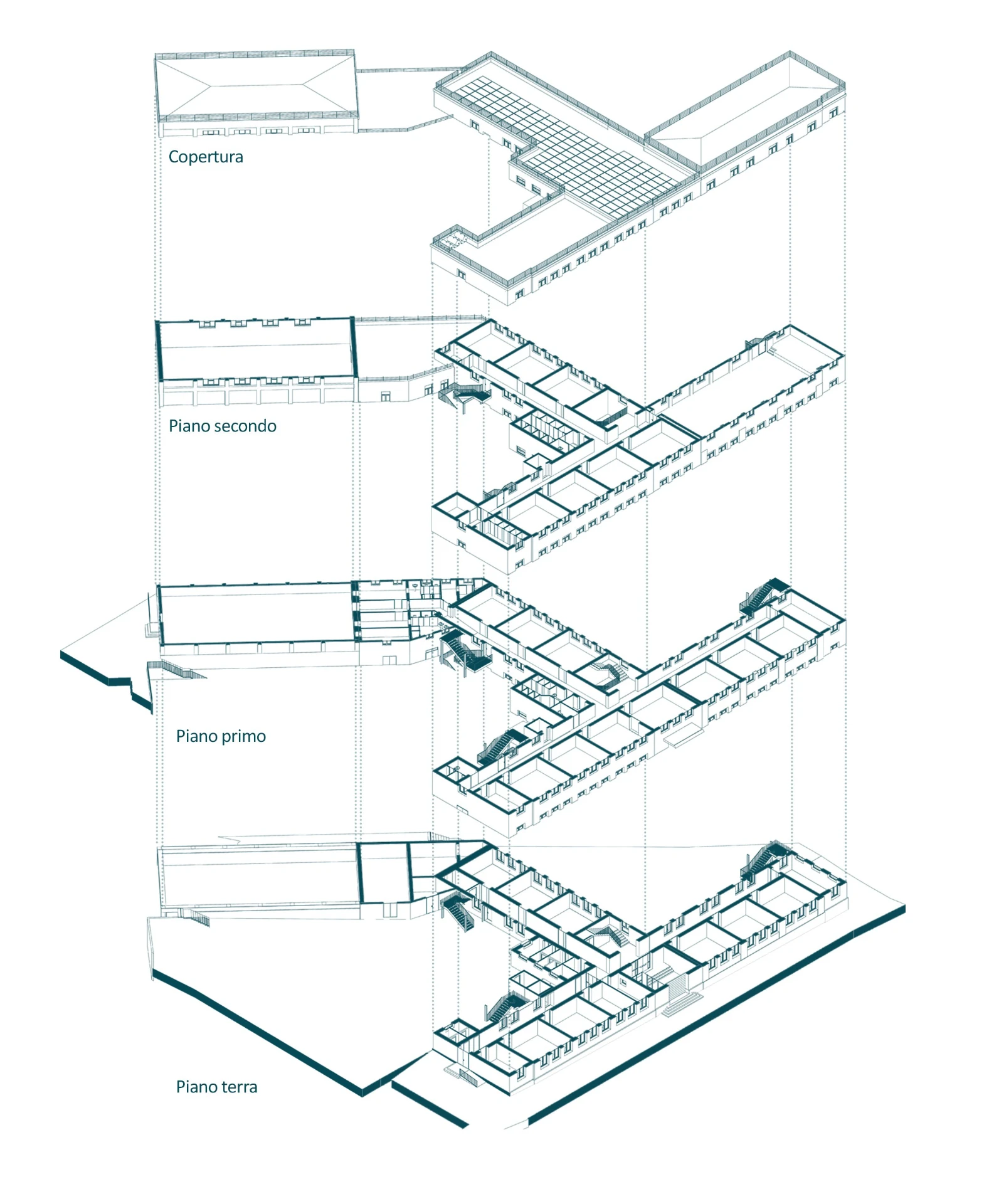
L’edificio scolastico, che occupa una superficie totale pari a circa 3450 mq, di proprietà del Libero Consorzio Comunale di Agrigento si presenta costituito da n.3 corpi di fabbrica realizzati a partire dagli anni ‘60, con sistemi strutturali differenti che fanno intuire come l’edificio abbia subito interventi e ampliamenti in epoche successive. L’edificio occupa.
Obiettivo della progettazione è sato quello di garantire le adeguate condizioni di comfort all’interno del fabbricato in funzione delle attività che in esso si svolgeranno, sia in termini architettonici e distributivi nonchè in termini di illuminazione, ventilazione naturale e protezione dalle temperature esterne.
È stato quindi effettuato lo studio delle condizioni termiche e illuminotecniche dei vari locali, in relazione all’esposizione e all’orientamento dell’edificio, propedeutico alla definizione dell’involucro edilizio e dei sistemi impiantistici deputati alla climatizzazione e all’illuminazione interna, al fine di garantire elevati standard prestazionali, un razionale utilizzo delle risorse energetiche e la massimizzazione del contributo termico-luminoso naturale: il tutto nel rispetto delle normative vigenti e con l’intento di minimizzare le future operazioni di manutenzione.
Inoltre sono stati progettati importanti interventi strutturali che si configurano come interventi di adeguamento sismico, ai sensi di quanto riportato dalle NTC 2018, e dunque finalizzati ad eliminare le carenze rilevate sul fabbricato, in modo da incrementare la capacità di resistenza della struttura esistente alle azioni considerate, in particolar modo a quelle sismiche, conseguendo i livelli di sicurezza richiesti dalle norme. Nello specifico sono stati progettati: Rinforzo di setti in muratura tramite tecnica dell’intonaco armato con reti in GFRP; Rinforzo a taglio di pilastri e travi emergenti in c.a. mediante materiali compositi in fibre di carbonio; Rinforzo a taglio dei nodi in c.a. non interamente confinati con materiali compositi in fibre di carbonio.
COMMITTENTE
Libero Consorzio Comunale di Agrigento
ANNO
2022
PRESTAZIONE EFFETTUATA
Progettazione di fattibilità tecnico -economica
Progettazione definitiva
Progettazione esecutiva
Coordinamento della sicurezza in fase di progettazione
Direzione lavori e CSE (In corso)
IMPORTO DELL’OPERA
€ 3.616.876,49
SOGGETTO INCARICATO
Engineering Group s.r.l.
Acale s.r.l.

















